Skip to content

56 Jensen Avenue

Whyalla Jenkins SA 5609

  • 4 Bed
  • 2 Bath
  • 2 Parks
Contact Agent
Enquire now

MODERN INVESTMENT WITH IMMEDIATE RETURNS!

*** INSPECTION BY APPOINTMENT ONLY DUE TO TENANCY ***

Allotment size: 454m2
Council rates: $2,459.16 per annum
Water supply & sewer rates: approx $165 per quarter
Year built: 2009
Zoned: General neighbourhood
Occupancy: Currently tenanted $420 per week until 13 May 2026

Located in the sought-after Ocean Eyre Estate, this modern home presents an excellent investment opportunity. Currently tenanted until 13 May 2026, it offers immediate rental returns and peace of mind. Positioned close to local parks and shops, the location is ideal for convenience and lifestyle. A stylish, low-maintenance property perfect for the smart investor.

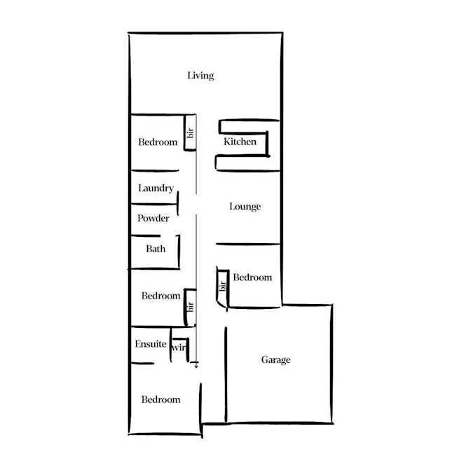
Entry to hallway
Open plan living with split system air-conditioning
Floating floorboards throughout main living spaces
Modern kitchen/meals with stainless steel appliances and gas cooktop
Four carpeted bedrooms
Master bedroom complete with walk-in robe, private ensuite and split system air-conditioning
Three additional bedrooms all equipped with built-in robes
Modern main bathroom with separate bath, walk-in shower, powder room, and separate toilet
Tiled laundry with built-in storage and external access
Double garage with automatic roller doors and direct backyard access
Undercover pergola adjoining the living area – ideal for entertaining
Handy garden shed for additional storage
Easy-care, low maintenance front and rear yards

Disclaimer: We have in preparing this information used our best endeavours to ensure that the information contained herein is true and accurate but accept no responsibility and disclaim all liability in respect of any errors, omissions, inaccuracies, or misstatements that may occur. Prospective purchasers should make their own enquiries to verify the information contained herein. Elders Real Estate RLA62833

Features

General Features

  • Property Type: House
  • Bedrooms: 4
  • Bathrooms: 2
  • Land Size: 454sqm

Indoor Features

  • Toilets: 2

Outdoor Features

  • Carports: 2

Can I afford 56 Jensen Avenue?

With access to the best on offer from 30 lenders and complete support and advice from pre-approval to settlement, you can trust an Elders Home Loans broker to find a quick and simple solution.

Get a Quote

Elders Real Estate Whyalla

Enquire about 56 Jensen Avenue, Whyalla Jenkins, SA, 5609

Property guides and resources

Elders Real Estate Continues Its Give It Christmas Appeal for the Third Year

As the festive season approaches, Elders Real Estate is once again rallying…
Read more

Smart Home Automation Upgrades to Beat the Heat

As we begin to head into the summer months, homebuyers and homeowners…
Read more

Modern Kitchen and Mudroom Makeover on a Budget

You don’t need a full renovation (or a designer’s budget) to breathe…
Read more