Skip to content

30 Custance Avenue

Whyalla Jenkins SA 5609

  • 3 Bed
  • 2 Bath
  • 2 Toilet
  • 1 Park
Contact Agent
Enquire now

MODERN, LOW-MAINTENANCE LIVING WITH SECURE INVESTMENT RETURNS!

*** INSPECTION BY APPOINTMENT ONLY DUE TO TENANCY ***

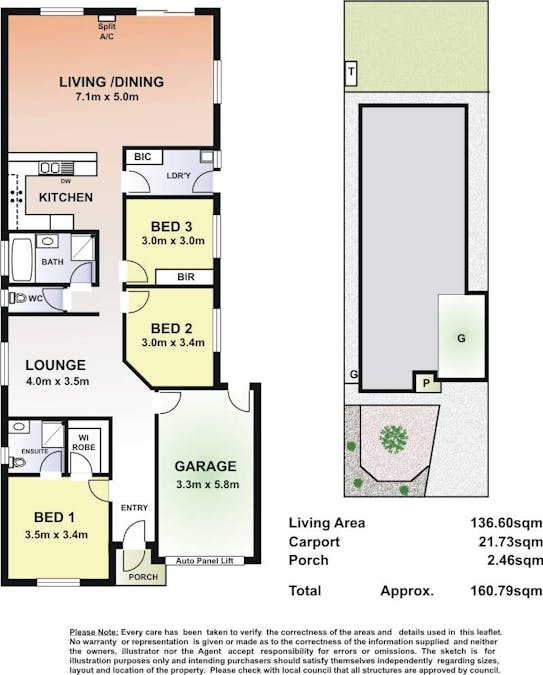
Allotment size: 340m2
Council rates: $2,262.46 per annum
Water supply & sewer rates: approx $165 per quarter
Year built: 2010
Zoned: General neighbourhood
Occupancy: Currently tenanted $400 per week until 9 October 2026
This allotment is considered a "Primary Community Plan" with the dwelling next doors. There's no strata or community manager, insurance for common land only. Insurance cost $286.49 per annum

Located in the popular Ocean Eyre Estate, this neat and tidy home offers a low-maintenance lifestyle in a convenient location. Perfect for investors, it comes with a secure tenant in place until October 2026, ensuring immediate returns. Enjoy the ease of being close to local shops and Jubilee Park. A smart investment opportunity in a sought-after area.

Entry to hallway
Easy-care tiled flooring throughout main living areas
Formal carpeted lounge
Spacious open-plan kitchen and meals area with split system air-conditioning and sliding door access to the rear yard
Modern kitchen featuring stainless steel appliances and gas cooktop
Three carpeted bedrooms
Master bedroom complete with private ensuite and walk-in robe
Second bedroom fitted with a built-in robe
Well-appointed main bathroom with separate bath, walk-in shower and separate toilet
Practical laundry with built-in storage and direct external access to rear yard
Single garage with automatic roller door offering both internal and external access
Low maintenance front and rear yards for easy upkeep

Disclaimer: We have in preparing this information used our best endeavours to ensure that the information contained herein is true and accurate but accept no responsibility and disclaim all liability in respect of any errors, omissions, inaccuracies, or misstatements that may occur. Prospective purchasers should make their own enquiries to verify the information contained herein. Elders Real Estate RLA62833

Features

General Features

  • Property Type: House
  • Bedrooms: 3
  • Bathrooms: 2
  • Land Size: 340sqm
  • Living Areas: 1

Indoor Features

  • Toilets: 2

Outdoor Features

  • Garage Spaces: 1

Can I afford 30 Custance Avenue?

With access to the best on offer from 30 lenders and complete support and advice from pre-approval to settlement, you can trust an Elders Home Loans broker to find a quick and simple solution.

Get a Quote

Elders Real Estate Whyalla

Enquire about 30 Custance Avenue, Whyalla Jenkins, SA, 5609

Property guides and resources

Elders Real Estate Continues Its Give It Christmas Appeal for the Third Year

As the festive season approaches, Elders Real Estate is once again rallying…
Read more

Smart Home Automation Upgrades to Beat the Heat

As we begin to head into the summer months, homebuyers and homeowners…
Read more

Modern Kitchen and Mudroom Makeover on a Budget

You don’t need a full renovation (or a designer’s budget) to breathe…
Read more